Request Appraisal

"*" indicates required fields

This field is for validation purposes and should be left unchanged.
How can we help?*

251 Gooch Street, THORNBURY

$1,340,000

  • 3
  • 1
  • 1

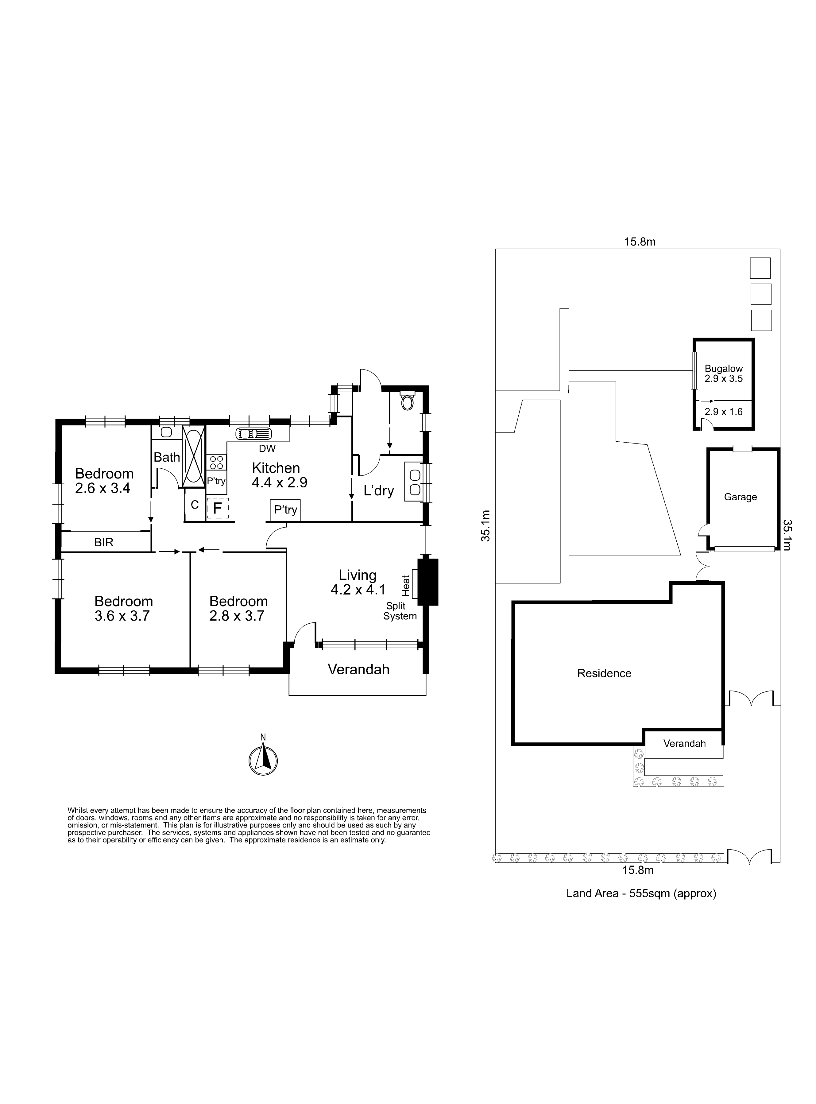
Your opportunity to own an entry level well-built Brick home with 556m2 of prime land in a popular Thornbury location.

Buy with confidence as this opportunity will significantly appeal to home buyers and developers (STCA) looking for a convenient lifestyle and options.

The existing residence comprises 3 bedrooms, central bathroom, lounge, kitchen, side drive to garage, bungalow and a great sized rear yard ideal for home extension, new home or Dual occupancy/redevelopment (STCA).

A short stroll to Fairfield Village and only metres from local Station Street shops, excellent local schooling, Darebin Creek Parklands, sporting facilities and Bus transport nearby.
Features include polished hardwood floors, Gas Heating/HW & split system aircon.

Statement of Information Statement of Information Floor plan

Location

Subscribe to our Newsletter

"*" indicates required fields

This field is for validation purposes and should be left unchanged.